Звонок бесплатный
812-950-50-50
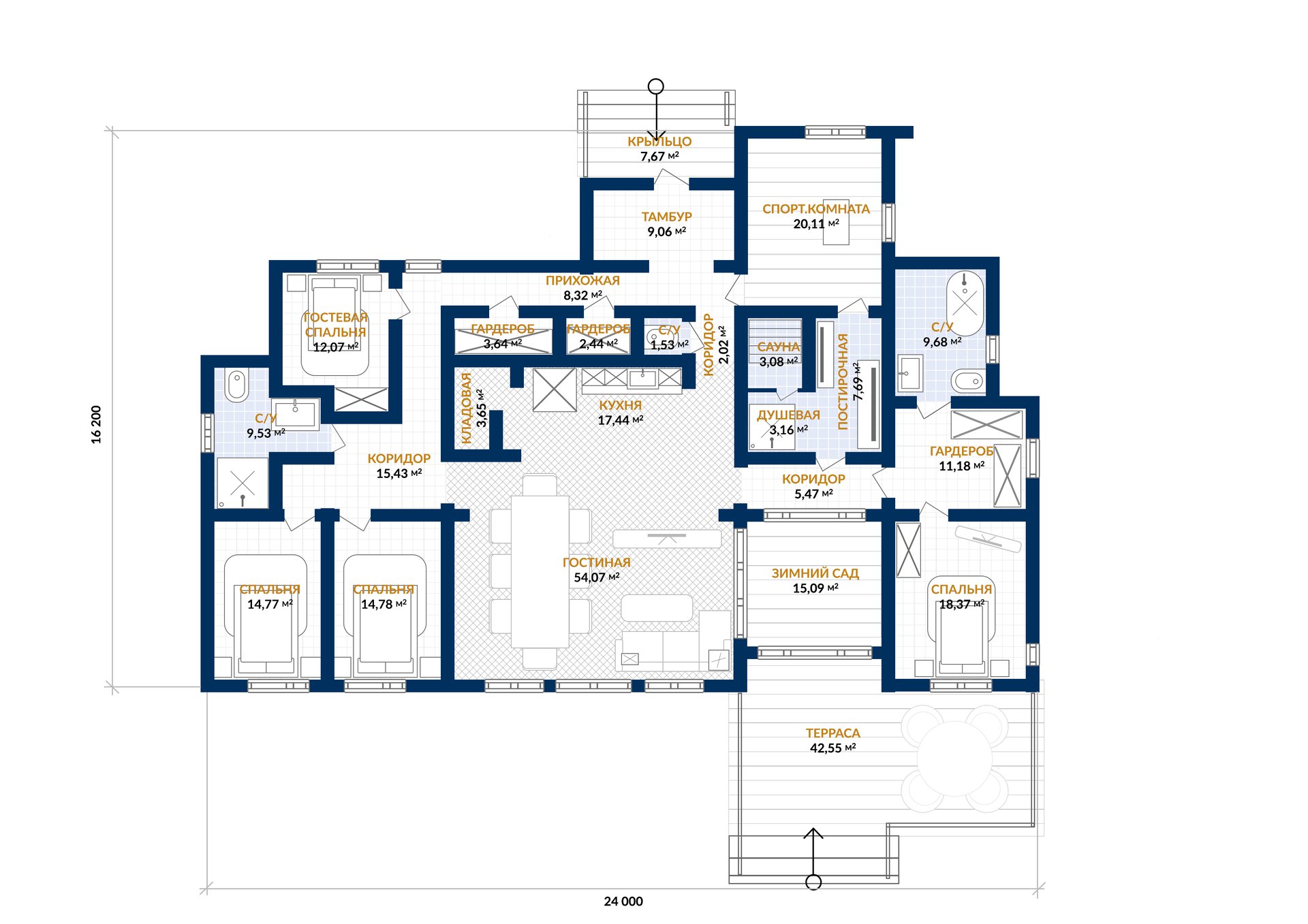
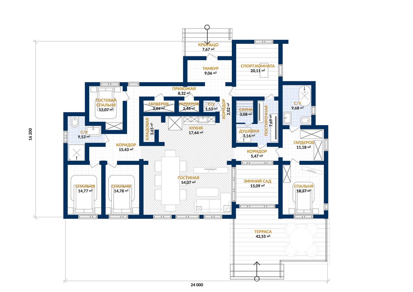
Параметры
0

Этажность

0м2

Общая площадь

0м2

Площадь внутренних помещений

0м2

Балконы / навесы / террасы

Опции
0Спальни

Спальни

0Санузлы

Санузлы

КОМПЛЕКТАЦИЯ «ТЁПЛЫЙ КОНТУР»

«ТЁПЛЫЙ КОНТУР» — это готовый комплект всех деталей из клеенного бруса и остальных строительных материалов, для сборки дома в “Тёплом контуре” по проекту Корпорации “РУСЬ”.

Монтажной бригаде, на Вашем участке, остается только собрать комплект конструкций дома, следуя прилагаемой рабочей документации.

  • Раздел «Архитектурные решения» (АР);
  • Раздел «Конструкции деревянные» (КД);

  • Детали из клееного бруса для устройства стен дома со всеми необходимыми запилами и технологическими отверстиями;
  • Элементы каркасных перегородок для устройства внутренних стен дома;
  • Межвенцовый уплотнитель;
  • Чашечный уплотнитель;
  • Нагели деревянные;
  • Обсады оконных и дверных проемов;
  • Гидроизоляция первого венца;
  • Оцинкованный металлический крепеж и метизы;

  • Клееные столбы;
  • Клееные балки;
  • Метизы крепления балок и столбов;

  • Оцинкованный металлический крепеж и метизы;

  • Оконные блоки метало-пластиковые (ПВХ);
  • Отливы металлические.

  • Комплект наличников и доборных элементов на окна и входные двери;
  • Метизы;

  • Стропила;
  • Вентиляционный брусок;
  • Брусок пароизоляции;
  • Брусок смены направления под дополнительное утепление;
  • Обрешетка с шагом 250 мм под сплошной настил кровли;
  • OSB-3 для сплошного настила;
  • Гидро/ветрозащитная пленка;
  • Пароизоляционная пленка;
  • Утеплитель (базальтовая вата) 250 мм
  • Ветровые и карнизные доски;
  • Доска для подшивки свесов;
  • Подкладочный ковер;
  • Кровельное покрытие (битумная/цементно-песчаная черепица/фальцевая кровля);
  • Снегозадержатели;
  • Водосливная система;
  • Крепежные элементы и метизы.
Проекты модельного ряда
Кемь 255
Дома из клееного бруса
от 14 740 000 ₽
Кемь 166
Дома из клееного бруса
166,16 м2
Консультация специалиста

Оставьте заявку – специалисты коммерческого департамента корпорации позвонят в указанное время.

Пожалуйста представьтесь!
Пожалуйста напишите правильный телефон!
Вы должны согласиться перед отправкой.